Korhonen Oy Tili- ja kiinteistötoimisto

 
 

omakotitalo, Kajaani, Kylmä

Riitetie 11, 87500 Kajaani

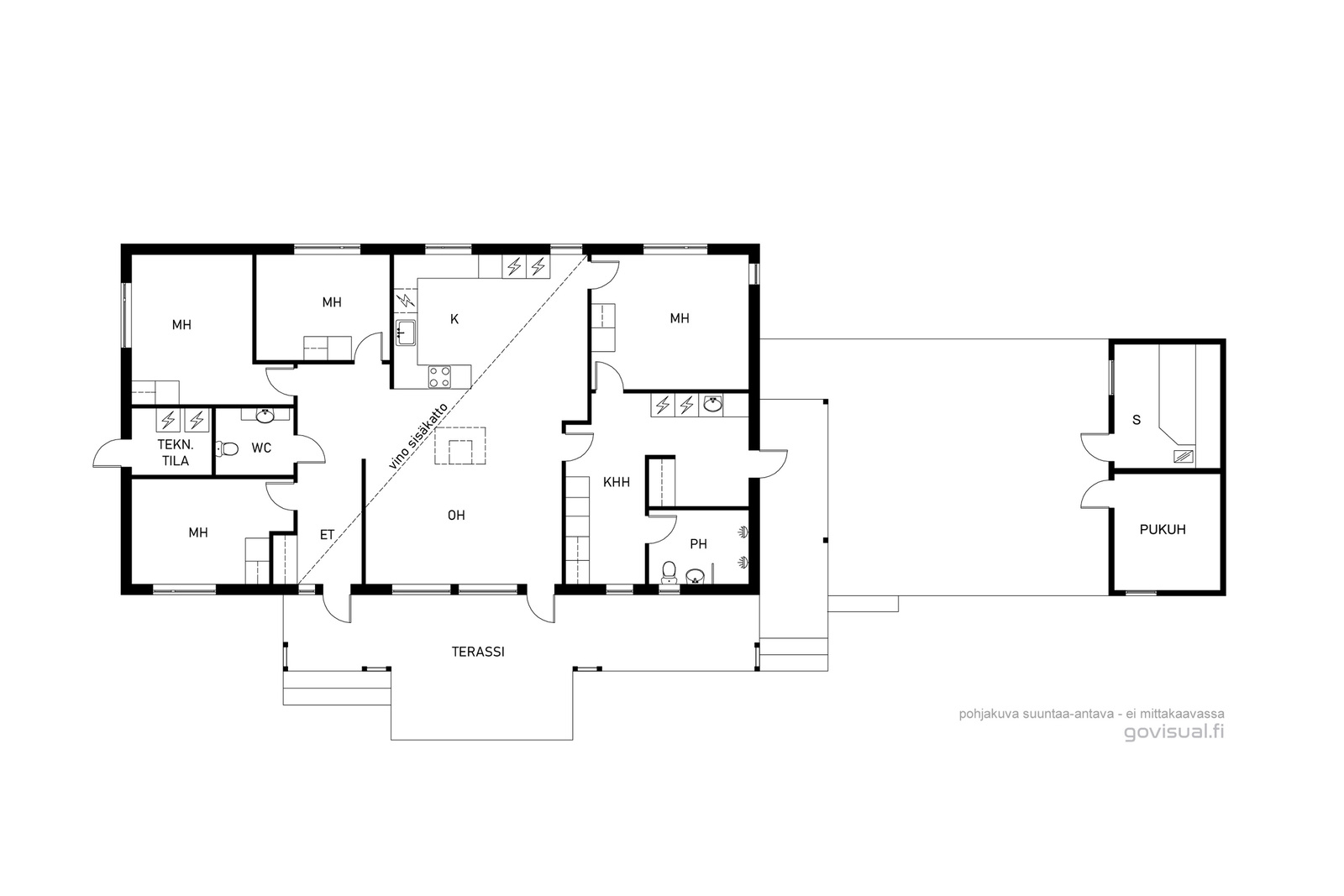
125.5 m2 | 319 000 € | 5H+K+WC+PH+KHH+tekninen tila


Kari Korhonen
044 563 9633, kari.korhonen@tkt-korhonen.fi

Suositulla Kylmällä vuonna 2017 rakennettu moderni omakotitalo maalämmöllä. Koti, jossa on tyyliä ja arjen mukavuutta. Tässä upeassa omakotitalossa on kauniita sisustusratkaisuja ja huolella valittuja sisustusmateriaaleja. Lattioissa on ajatonta vinyylilankkua ja seinien värimaailma on harmoninen. Talossa on neljä makuuhuonetta sekä avara tupakeittiö. Olohuone ja keittiö muodostavat yhtenäisen tilan ja avaruutta lisää korotettu katto. Keittiössä on ajattomat valkoiset keittiökalusteet ja tilaa isommallekin ruokailuryhmälle. Olohuoneesta on käynti tilavalle terassille, jonka yhteydessä on erillinen puulämmitteinen pihasauna sekä pukuhuone. Talossa on tyylikäs kylpyhuone, erillinen wc sekä omalla sisäänkäynnillä olevat toimivat kodinhoitotilat, joissa on runsaasti säilytystilaa. Tilaa on siis isommallekin perheelle. Isolla tontilla (1867 m2) piha-alue on nurmetettu ja osin asfaltoitu ja siellä on istutuksia mm. ympärille istutettu kuusiaita, syreenipuita ja -pensaita, angervoja, pihlajia, pallotuijia, pensashanhikkeja ja kaksi punaviinimarjapensasta. Talousrakennuksessa on kaksi varastoa (molemmat ovat lämpöeristettyjä) sekä autokatos, jossa on tilaa kahdelle autolle. Ota yhteyttä, niin mennään katsomaan tätä upeaa kotia!

Ladataan karttaa...

Rakennus

Tyyppi Omakotitalo
Sijainti Riitetie 11, 87500, Kajaani
Tilat 5H+K+WC+PH+KHH+tekninen tila
Rakennusvuosi 2016
Kattotyyppi/kate Pulpettikatto
Kerrosluku 1
Rakennusaine puu
Energiatodistus Energialuokka: uudisrakentaminen B 2012, laadittu 10.3.2017
Tilat / pinta-alat Saunarakennus: 15 m2, huopakate, kevythirsi, paneloitu, puukiuas, pukuhuone Piharakennus: rivisaumapeltikate, lautaverhous, 2 varastoa yht. 12 k-m2, autokatos 34,5 k-m2
Keittiön kuvaus Maalatut seinät, vinyylilattia, jääkaappi, pakastin, induktioliesi, uuni, astianpesukone, liesituuletin, ilmalämpöpumppu, kiinteät valaisimet, kaapistot
Kylpyhuoneen kuvaus Laatoitettu, kaksi suihkua, pesuallas, allaskaapit, wc-istuin, peilikaappi
Khh:n kuvaus Kitka vinyylilattia, maalataut seinät, kaapistot
Olohuoneen kuvaus Vinyylilattia, maalatut seinät
Makuuhuoneiden kuvaus Maalatut seinät, vinyylilattia
Säilytystilat ulkovarasto
Säilytystilojen kuvaus Piharakennuksessa kaksi varastoa.
Korjaukset Kesällä 2025 tehty varasto, leikkimökki ja postilaatikkoteline. Lisäksi samalla tehty keittiön ja kodinhoitotilan välitilojen lattian laatoitus uusiksi. Pihalle istutettu kesällä 2025 kaksi omenapuuta, kirsikkapuu ja kaksi viinimarjapensasta.
Kunto hyvä
Sauna Ei saunaa
WC Kitka vinyylilattia, maalatut seinät, allaskaappi, WC-istuin, pesuallas
Lisätietoja Viilentävä ilmalämpöpumppu

Kiinteistö

Kunta/kaupunki Kajaani
Kylä/Kaup.osa Kylmä
Kiinteistötunnus 205-18-35-8-L1
Tontin pinta-ala 1867 m2
Tontin omistus Vuokrattu
Vuokranantaja Kajaanin kaupunki
Tontin vuokra 1112.38
Kiinteistön tyyppi Omakotitalo
Kaavoitustiedot TYA-1 Ympäristöhäiriötä aiheuttamattomien teollisuusrakennusten ja asuinrakennusten korttelialue. Alueelle saadaan sijoittaa myös aluetta palvelevia liike-, toimisto- ja varastotiloja. Alueelle tulee sijoittaa vähintään 1 asunto tonttia kohti. Ulkovarastot on varustettava riittävän näkösuojan antavalla aidalla.
Kaavoitustilanne Asemakaava
Rakennusoikeus 0.25
Tie perille Kyllä
Sähköliittymä siirtyy Kyllä
Vesijohto Kunnan
Viemäri Kunnan
Muita siirtyviä liittymiä vesi- ja viemäriliittymä

Asuinaluetietoja

Palvelut Lehtikankaan S-market 1,8 km, Lehtikankaan apteekki 1,9 km, keskustan palvelut 3,4 km
Liikenneyhteydet Paikallisliikenne

Asumiskustannukset

Kiinteistövero 561,28 €/vuosi
Lisätiedot Sähkön kulutus 13250 kw/ vuosi / (6 henkilöä). Ostajan maksut: varainsiirtovero 3 %, kaupanvahvistus, lainhuudatus

Hintatiedot

Velaton hinta 319000 €
Myyntihinta 319000 €