Korhonen Oy Tili- ja kiinteistötoimisto

 
 

omakotitalo, Kajaani, Kuluntalahti

Heterannantie 11, 87950 Kajaani

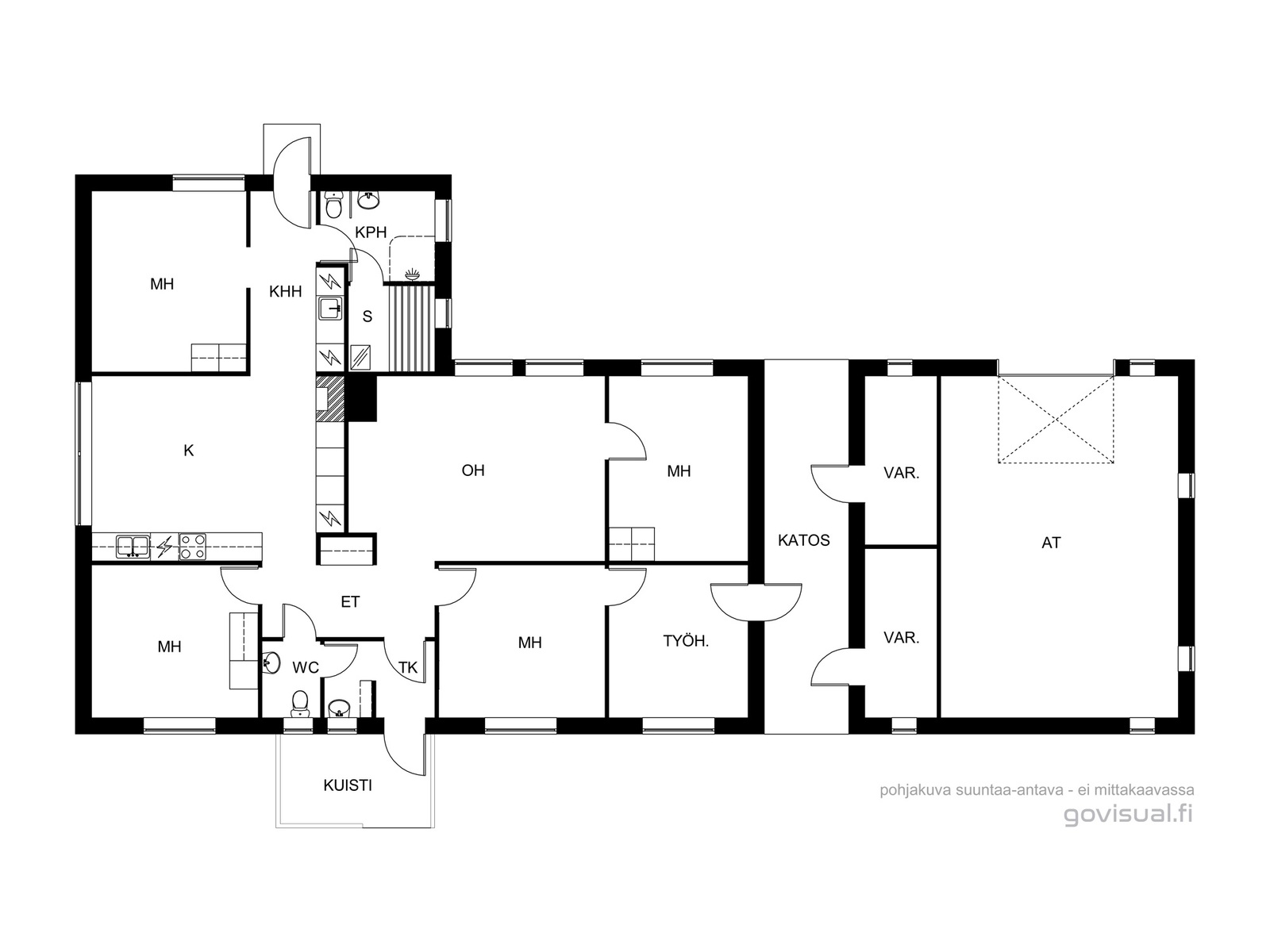
116 m2 | 67 500 € | 6h+k+ph+s+wc+autotalli+varastot


Kari Korhonen
044 563 9633, kari.korhonen@tkt-korhonen.fi

Tilava omakotitalo Kuluntalahdessa omalla 4000 m2 suuruisella suojaisalla tilalla. Laaja metsäinen pihapiiri sijaitsee omassa rauhassa ja siellä on puita, nurmikkoa ja pensaita. Asuinrakennus on kuntotarkastettu, josta laaditun raportin saat välittäjältä. Autotalli ja varastot sijaitsevat heti asuinrakennuksen vieressä, minkä lisäksi pihapiirissä on kaunis vanha varastorakennus, jonka kokonaisala on noin 128 k-m2. Asuintilat sijaitsevat yhdessä tasossa helpottaen arjen sujuvuutta. Talossa on yhteensä kuusi huonetta, joista työhuoneeseen kulku on järjestetty myös ulkokautta. Rakennuksessa on lisäksi tilava keittiö, erillinen wc sekä laatoitettu sauna ja pesuhuone. Rakennuksen sisäpinnat ovat alkuperäiset ja kaipaavat uudistamista pitkän yhtäjaksoisen asumisen jälkeen. Kuluntalahden koululle on noin 2 km, Kajaanin keskustaan ajaa noin 10 minuutissa.

Ladataan karttaa...

Rakennus

Tyyppi Omakotitalo
Sijainti Heterannantie 11, 87950, Kajaani
Tilat 6h+k+ph+s+wc+autotalli+varastot
Kattotyyppi/kate Harjakatto
Kerrosluku 1
Lämmitys Sähkö, sähköpatterilämmitys, kylpyhuoneessa lattialämmitys
Rakennusaine puu
Energialuokka E2013
Energiatodistus Laadittu 1.6.2021, voimassa 1.6.2031
Tilat / pinta-alat Vanha hirsirakenteinen talous-/varastorakennus, n. 128 k-m2. Talousrakennuksessa on rasvamonttu, jolle ei ole haettu rakennuslupaa.
Keittiön kuvaus Jääkaappi/pakastin, kaapistot, sähköliesi, liesituuletin/hormi/suodatin, leivinuuni. Keittiössä laattalattiat, puolipaneloidut/tapetoidut seinät, levykatto.
Kylpyhuoneen kuvaus Suihku, käsiallas, peili, tuuletusikkuna. Laattalattiat, laatoitetut seinät, yksi seinä paneloitu, paneelikatto, lattialämmitys. Pesukoneliitäntä ja lämminvesivaraaja sijaitsevat pukuhuone-/eteistilassa.
Olohuoneen kuvaus Muovimatto, tapetoidut seinät sekä levykatto.
Makuuhuoneiden kuvaus Huoneet 1-3: Muovimatto, tapetoidut seinät, levykatto kolmessa huoneessa. Huoneet 4-5: Muovimatto, puolipaneloidut/tapetoidut seinät, levykatto kahdessa huoneessa.
Säilytystilojen kuvaus Autotallin yhteydessä on talouskellari.
Korjaukset Käyttövesiputket osittain uusittu, lämminvesivaraaja vaihdettu
Kunto ei luokiteltu
Sauna Oma sauna
Sauna Laattalattia, seinät ja katto paneloitu.
Kiuas Puukiuas
WC Erillinen wc, jossa peilikaappi, käsiallas, kiinteät valaisimet. Lattiassa on muovimatto ja seinät on tapetoitu.

Kiinteistö

Kunta/kaupunki Kajaani
Kylä/Kaup.osa Kuluntalahti
Kiinteistötunnus 205-404-4-7
Tontin pinta-ala 4000 m2
Tontin omistus Oma
Kiinteistön tyyppi Tila
Kaavoitustiedot Kaavamerkintä AP-1/1. Kauttaviivan jäljessä oleva luku ilmoittaa alueella sallittujen rakennuspaikkojen lukumäärän. Rakennuspaikan pinta-alan tulee olla vähintään 3000 m2.Rakentamisen määrä rakentamispaikalla ei saa ylittää tehokkuuslukua e=0,15. Olemassa olevia asuinrakennuksia saa peruskorjata, mutta ei uudelleen rakentaa, jos rakennuspaikan koko ei täytä annettua vähimmäiskokoa. Aluetta ei saa käyttää siten, että vaikeutetaan sen kaavan mukaista käyttöä. Alueella ei sallita maahanimeytystä.
Kaavoitustilanne Osayleiskaava
Lisätiedot tontista Kiinteistö sijaitsee tasamaalla, hiekkakankaaalla, jossa on talon lähistöllä nurmikkoa ja istutuksia sekä reunoilla pääosin havupuustoista metsämaata.
Lisätiedot E=0,15
Oma sauna Kyllä
Tie perille Kyllä
Kuntotarkastus tehty Kyllä
Sähköliittymä siirtyy Kyllä
Vesijohto Porakaivo
Lisätietoja vesijohdosta Porakaivo
Lisätietoja viemäristä Jätevesikaivo

Asuinaluetietoja

Palvelut Komiahon kaupat n. 7,5 km, Kajaanin keskustaan n. 9 km.
Ajo-ohje Käänny Kulunnantieltä Takkarannantielle ja aja sitä n. 50 m - käänny Heterannantielle ja aja noin 120 m - käänny oikealle Heterannan yksityistielle.

Asumiskustannukset

Kiinteistövero 397,50 € €/vuosi
Lisätiedot Kiinteistövero 397,50 €/v. 2022 Varainsiirtovero 3 %, lainhuudatus, kaupanvahvistaja

Hintatiedot

Velaton hinta 67500 €
Myyntihinta 67500 €