Korhonen Oy Tili- ja kiinteistötoimisto

 
 

omakotitalo, Kajaani, Lehtikangas

Hunajakuja 18, 87500 Kajaani

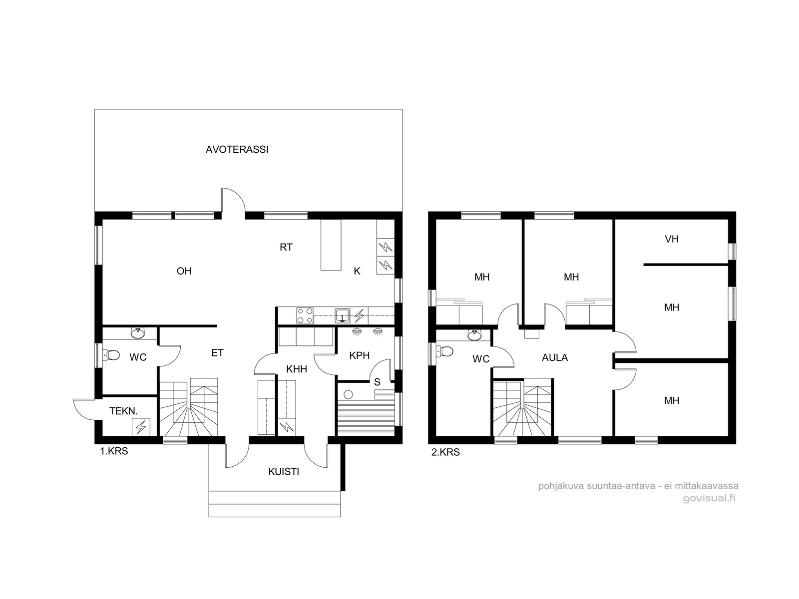
136.5 m2 | 295 000 € | 5h+k+khh+2 wc+kph+s+vh+aula


Kari Korhonen
044 563 9633, kari.korhonen@tkt-korhonen.fi

Kaunis vuonna 2023 rakennettu nykyaikainen koti suositulla Lehtikankaan asuinalueella lähellä päivittäispalveluita ja keskustaa. Tämän kodin sydän on avara olohuone, jonka suuret ikkunat tekevät oleskelu- ja ruokailutilasta näyttävän. Keittiössä on runsaasti työskentely- ja säilytystilaa, minkä lisäksi alakerran peseytymis- ja saunatilojen yhteydessä toimiva tilava kodinhoitohuone helpottaa arjen sujumista. Talossa on kaksi erillistä wc:tä. Talossa on neljä makuu-/työhuonetta, minkä lisäksi yläkerran aulassa on esimerkiksi työskentely-/oleskelutilaa. Olohuoneesta pääsee suoraan tilavalle terassille, joka avautuu ilta-aurinkoon päin. Talon lämmitysmuotona on kaukolämpö vesikiertoisella lattialämmityksellä ala- ja yläkerrassa. Alakerrassa on lisäksi ilmalämpöpumppu. Lähietäisyydellä on Lehtikankaan monipuoliset palvelut, S-market, apteekki ja Lehtikankaan monitoimitalo, jossa on koulu, päiväkoti ja kirjasto. Lähietäisyydellä Soidinsuon lähiliikunta-alue monipuolisine harrastusmahdollisuuksineen.

Ladataan karttaa...

Rakennus

Tyyppi Omakotitalo
Sijainti Hunajakuja 18, 87500, Kajaani
Tilat 5h+k+khh+2 wc+kph+s+vh+aula
Kattotyyppi/kate Harjakatto
Kerrosluku 2
Rakennusaine puu
Energialuokka B2018
Energiatodistus Laadittu 29.4.2021, voimassa 29.4.2031
Tilat / pinta-alat Pressutalli
Keittiön kuvaus Laminaattilattia, seinät maalattu, halltex katto, jääkaappi, pakastin, astianpesukone, mikro, induktioliesi, liesituuletin -aktiivihiilisuodatin.
Kylpyhuoneen kuvaus Lattia ja seinät laatoitettu, paneelikatto, 2 suihkua, ikkuna.
Khh:n kuvaus Laattalattia, seinät maalattu, halltex katto, kaapistot, pesukoneliitäntä.
Olohuoneen kuvaus Laminaattilattia, seinät maalattu, halltex katto
Makuuhuoneiden kuvaus 2 krs. Makuuhuone: laminaattilattia, seinät maalattu, halltex katto, peilikaappi Makuuhuone: laminaattilattia, seinät maalattu, halltex katto, peilikaappi Makuuhuone: laminaattilattia, seinät maalattu, halltex katto, vaatehuone Makuuhuone: laminaattilattia, seinät maalattu, halltex katto, vaatehuone
Säilytystilat vaatehuone
Kunto hyvä
Sauna Oma sauna
Sauna Laattalattia, seinät ja katto paneelia.
Kiuas Sähkökiuas
WC wc:t: Laattalattia, seinät maalattu, peili, pesuallas, allaskaappi, bideesuihku, ikkuna.
Lisätietoja Eteinen: Laminaattilattia /laatta, seinät maalattu, halltex katto, ilmalämpöpumppu, peiliovikaappi
Lisätietoja Verhotangot

Kiinteistö

Kunta/kaupunki Kajaani
Kylä/Kaup.osa Lehtikangas
Kiinteistötunnus 205-5-222-1-L1
Tontin pinta-ala 782 m2
Tontin omistus Vuokrattu
Vuokranantaja Kajaanin kaupunki
Tontin vuokra 757.34
Kiinteistön tyyppi Omakotitalo
Maaperä ja kasvusto Piha nurmikkoa, pihatie sorapinnalla.
Kaavoitustiedot Kaavamerkintä: AO Erillispientelojen korttelialue. Lisätietoja Kajaanin kaupungilta
Kaavoitustilanne Asemakaava
Rakennusoikeus 0.35
Oma sauna Kyllä
Tie perille Kyllä
Kaapeli-tv Kyllä
Sähköliittymä siirtyy Kyllä
Vesijohto Kunnan
Viemäri Kunnan
Muita siirtyviä liittymiä Vesi- ja viemäriliittymä, kaukolämpöliittymä, valokuitu- ja kaapeli-tv-liittymät

Asuinaluetietoja

Palvelut S-market Lehtikangas n. 1 km, Lehtikankaan apteekki n. 850 m, Tokmanni 850 m, Prisma 1,1 km, Lehtikankaan kirjasto 1,6 km
Liikenneyhteydet Paikallisliikenne

Asumiskustannukset

Lämmityskustannukset 12,24 MWh €/vuosi
Kiinteistövero 760,00 €/vuosi
Lisätiedot Kaukolämmön kulutus 12,24 MWh 2025 Sähkön kulutus 4347 kWh/v. 2025 Ostajan maksut: Varainsiirtovero 3 %, vuokraoikeuden kirjaaminen

Hintatiedot

Velaton hinta 295000 €
Myyntihinta 295000 €