Korhonen Oy Tili- ja kiinteistötoimisto

 
 

omakotitalo, Kajaani, Kuluntalahti

Hovimäentie 19, 87950 Kajaani

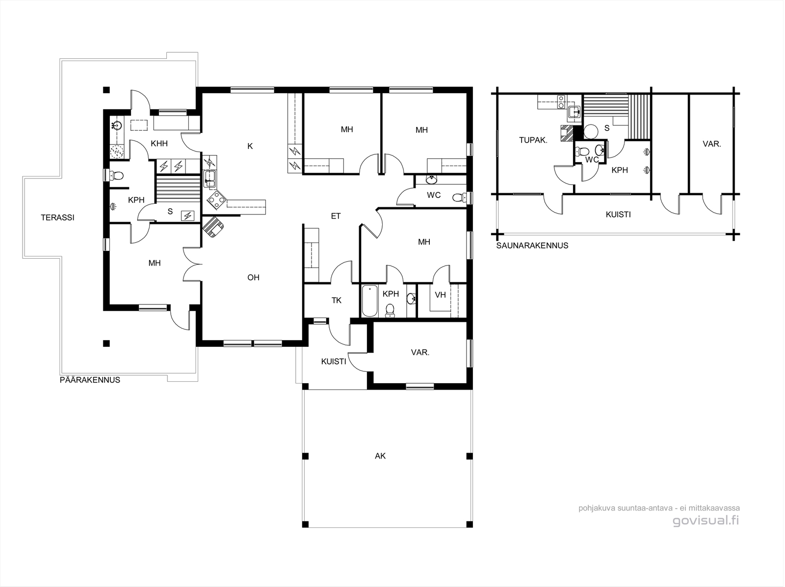
131 m2 | 314 000 € | oh+k+4mh+s+ph+khh+2wc+vh+et+autokatos+varasto


Kari Korhonen
044 563 9633, kari.korhonen@tkt-korhonen.fi

Kaunis vuonna 2004 rakennettu nykyaikainen omakotitalo erinomaisella sijainnilla Kuluntalahden viihtyisällä pientaloalueella lähellä luontoa, koulua ja uimarantaa. Oma yli 5000 m2:n suuruinen viihtyisä pihapiiri tarjoaa hyvät puitteet harrastuksille ja vapaa-ajan vietolle. Tässä valoisassa kodissa on kauniit pintamateriaalit ja huolella suunniteltu pohjaratkaisu. Kodin keskiössä on avara olohuone-keittiötila, jossa on suuri huonekorkeus sekä kaunis varaava takka. Heti keittiön vieressä on arkea sujuvoittava toimiva kodinhoitotila, josta on käynti tyylikkäisiin sauna- ja pesutiloihin sekä terassille. Päämakuuhuoneen yhteydessä on oma kylpyammeella varustettu wc sekä vaatehuone. Olohuoneen vieressä on muista makuuhuoneista erillään oleva lasisin pariovin varustettu makuuhuone, joka toimii hyvin myös kirjasto- tai vierashuoneena. Talossa on lisäksi kaksi muuta makuuhuonetta, joissa on kaapistot. Eteisen yhteydessä on erillinen wc sekä tuulikaappi. Päärakennuksessa on lattialämmitys sähköllä, lisäksi lämmitystä tuetaan varaavalla takalla sekä ilmalämpöpumpulla. Katetun sisäänkäynnin vieressä on lämmin varasto sekä autokatos kahdelle autolle. Autokatoksen yhteydessä on myös käyttöullakko. Talo on kuntotarkastettu vuonna 2022. Vuonna 2008 rakennetussa hirsirunkoisessa sauna-/varastorakennuksessa on tunnelmallinen sauna puukiukaalla, laatoitetut pesutilat, erillinen wc sekä oleilua varten viihtyisä tupakeittiö, jossa on myös ilmalämpöpumppu. Rakennuksessa sijaitsee lisäksi varasto ja halkovaja. Upeasti toteutetussa pihapiirissä on mm. viihtyisä terassialue oleiluun. Talon edusta ja kulkuväylät ovat kivetetty, ja kauniit muurikivet reunustavat helppohoitoista kivipihaa. Piha-alueella on istutuksia ja pelikenttä nurmipinnalla, osa tontista on hoidettua kangasmetsää. Alueella on hyvät ulkoilumahdollisuudet. Kuluntalahden koululle on noin 0,7 km ja Kuluntalahden uimarannalle noin 1 km. Kajaanin keskusta sijaitsee noin 10 minuutin ja Vuokatti 20 minuutin ajomatkan päässä, keskustaan on myös hyvät pyörätiet.

Ladataan karttaa...

Rakennus

Tyyppi Omakotitalo
Sijainti Hovimäentie 19, 87950, Kajaani
Tilat oh+k+4mh+s+ph+khh+2wc+vh+et+autokatos+varasto
Rakennusvuosi 2004
Kattotyyppi/kate Harjakatto
Kerrosluku 1
Rakennusaine puu
Energialuokka D2018
Energiatodistus Kainuun Talotarkastajat Oy, laadittu 7.7.2022, voimassa 7.7.2032 asti.
Tilat / pinta-alat Hirsirunkoinen sauna-/varastorakennus rakennettu vuonna 2008. Rakennuksessa sauna, pesuhuone, wc, tupa, halkoliiteri ja varasto 42 m2. Saunassa laattalattia, seinät paneelia, puukiuas, pesuhuone laatoitettu, wc laatoitettu, tuvassa laatoitettu lattia ja seinät hirrestä. Lämpimissä tiloissa lattialämmitys.
Keittiön kuvaus Jääkaappi, pakastekaappi, astianpesukone, kiinteät valaisimet, liesituuletin/hormi, keraaminen liesi, kivitasot. Tammiparketti, seinät tapetoitu, paneelikatto.
Kylpyhuoneen kuvaus Suihku suihkuovilla, wc-istuin, lattialämitys, kiinteät valaisimet, tuuletusikkuna, laattalattia, seinät kaakelia.
Khh:n kuvaus Kodinhoitohuoneessa pesukone (uusittu 2023), kuivausrumpu, kuivauskaappi, keskuspölynimuri, lämminvesivaraaja, pesuallas, pyykkikaapit, pöytätaso, lattiakaivo, pesukoneliitäntä, lattialämmitys, laattalattia, seinissä lasikuitutapetti. Kodinhoitohuoneesta uloskäynti terassille.
Olohuoneen kuvaus Kaunis varaava takka. Lattia tammiparkettia, seinät maalattu/tapetoitu, paneelikatto.
Makuuhuoneiden kuvaus Makuuhuone 1: laattalattia, maalatut/tapetoidut seinät, paneelikatto, käynti terassille ja pesuhuoneeseen. Makuuhuone 2: kaapistot, tammiparkettilattia, maalatut/tapetoidut seinät, paneelikatto. Makuuhuone 3: kaapistot, tammiparkettilattia, maalatut/tapetoidut seinät, paneelikatto. Makuuhuone 4: tammiparkettilattia, maalatut/tapetoidut seinät, paneelikatto. Makuuhuoneen yhteydessä on oma wc/kylpyhuone.
Säilytystilat vaatehuone, muu erillinen varasto
Korjaukset - Pesuhuoneeseen on asennettu suihkuseinät ja lasiovet sekä kaikki makuuhuoneet maalattu/tapetoitu 2015 - pesuhuoneen suihku uusittu 2018 - IV-kanavien nuohous ja säätö sekä hetivalmiin kiukaan elektroniikka uusittu 2019 - terassin kaiteet maalattu 2020 - ilmalämpöpumput asennettu asuinrakennukseen sekä piharakennukseen 2021 - talotikkaat ja lapetikas uusittu, rikkoutuneet kattotiilet uusittu, wc:n kalusteet uusittu ja lattia maalattu 2022
Kunto hyvä
Sauna Oma sauna
Sauna Päärakennuksessa heti valmis-sähkökiuas, lattialämmitys, laattalattia, seinät ja katto paneloitu.
Kiuas Heti valmis -sähkökiuas
WC Wc 1: kylpyamme, suihku, wc-istuin, käsiallas, peili, kiinteät valaisimet, lattialämmitys, laattalattia, seinät kaakelia. Wc 2: wc-istuin, allaskaapisto, peili, kiinteät valaisimet, tuuletusikkuna, laattalattia, seinät kaakelia.
Lisätietoja Asuinrakennuksen yhteydessä tilava, lämmin varastotila, autokatoksen yhteydessä käyttöullakko, eteinen, tuulikaappi, voimavirtarasia.
Lisätietoja Kaapistot, sälekaihtimet/rullaverhot, verhotangot, keskuspölynimuri, kiinteät valaisimet, lämminvesivaraaja, ilmalämpöpumppu (kummassakin rakennuksessa), matontamppaustelin, pyykinkuivausteline, pesukone ja kuivausrumpu, jätesäiliö, istutukset.

Kiinteistö

Kunta/kaupunki Kajaani
Kylä/Kaup.osa Kuluntalahti
Kiinteistötunnus 205-402-1-214
Tontin pinta-ala 5013 m2
Tontin omistus Oma
Kiinteistön tyyppi Tila
Maaperä ja kasvusto Piha laatoitettu/asfaltoitu. Selkeä ja helppohoitoinen kivipiha, jota reunustaa muurikivet. Pihakiveykset Lakka-tuotteen antiikkikiveä noin 300 m2. Talon ympärillä kiveytys ja laatta. Pelikenttä nurmipinnalla. Ruusupensaita, omenapuita, kääpiövuorimäntyjä ja muita istutuksia.
Kaavoitustiedot Kajaanin kaupungilta
Kaavoitustilanne Yleiskaava
Lisätiedot A eli oleva pientalovaltainen asuntoalue. Rakennusoikeus yhtä rakennuspaikkaa kohti on enintään 15 % tontin pinta-alasta, kuitenkin korkeintaan 600 k-m2, josta asuinrakentamiseen saa käyttää enintään 350 k-m2. Rakennukset tulee liittää yleiseen viemäriin, mikäli sellainen rakennetaan.
Oma sauna Kyllä
Tie perille Kyllä
Kuntotarkastus tehty Kyllä
Sähköliittymä siirtyy Kyllä
Vesijohto Kunnan
Viemäri Kunnan
Muita siirtyviä liittymiä vesi- ja viemäriliittymät

Asuinaluetietoja

Palvelut Kuluntalahden uimaranta n. 1 km, Komiahon ruokakaupat n. 9,5 km, Kajaanin keskusta n. 11 km, Vuokatti n. 25 km.
Liikenneyhteydet Bussipysäkki Vuokatintiellä, pyörätie keskustaan.

Asumiskustannukset

Lämmityskustannukset puu 3-4 m3 €/vuosi
Kiinteistövero 468,25 €/vuosi
Lisätiedot Muut maksut: - tienhoitomaksu (arvio) 71,70 eur/v - talous- ja jätevesi kulutuksen mukaan/Kajaanin vesi - sähkönkulutus n. 22625 kWh/v, josta n. 4000 kWh sauna-/varastorakennuksen osuus. Ostajan maksut: varainsiirtovero 3 %, kaupanvahvistus, lainhuudatus

Hintatiedot

Velaton hinta 314000 €
Myyntihinta 314000 €