Korhonen Oy Tili- ja kiinteistötoimisto

 
 

rivitalo, Kajaani, Palokangas

Karhunpolku 19, 87300 Kajaani

130 m2 | 45 000 € | 4h+k+s


Kari Korhonen
044 563 9633, kari.korhonen@tkt-korhonen.fi

Tilava rivitalokoti hyvällä sijainnilla luonnonläheisellä Palokankaan asuinalueella. Kävelyetäisyydellä koulusta, päiväkodista ja päivittäispalveluista. Huoneiston yhteydessä on suojaisa piha-alue oleskelua varten. Huoneistolla oma autotalli. Avarassa olohuoneessa on suuret, puistoalueen suuntaan avautuvat ikkunat. Tässä kodissa on lisäksi 3 makuuhuonetta, keittiö, ruokailutila, sauna ja kylpyhuone. Lisäksi huoneistossa on erillisellä käynnillä oleva tilava lämmin askarteluhuone harrastuksia taikka ammatinharjoittamista varten. Voit tehdä remontoimalla asunnosta toiveidesi mukaisen kodin. Lehtikankaan monitoimitalo (koulu, kirjasto ja päiväkoti) sijaitsee kävelymatkan päässä. Lähellä on myös kiva leikkipuisto sekä Vimpelin ulkoilureitit ja harrastusmahdollisuudet. Kainuun uusi keskussairaala on kävelymatkan päässä. Sovi oma esittelyaikasi.

Ladataan karttaa...

Huoneisto

Tyyppi Rivitalo
Sijainti Karhunpolku 19, 87300, Kajaani
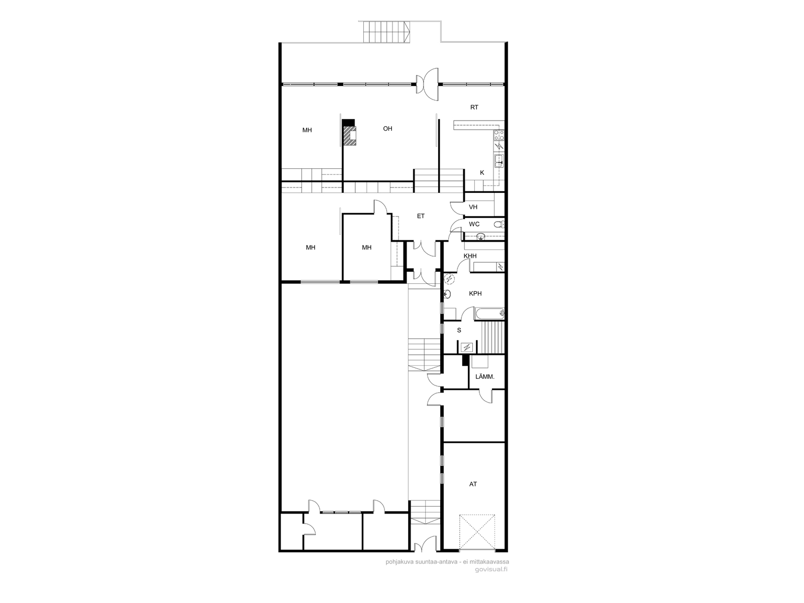
Tilat 4h+k+s
Asuin- / kokonaispinta-ala 130 m2 / 130 m2
Kerros/kerroksia 1/1
Näkymät huoneistosta Näkymät takapihalle Vimpelin laakson (metsän) suuntaan sekä pihalle Karhunpolunpolulle.
Keittiön kuvaus Laminaattilattia, seinissä paneeli/tapetti, paneelikatto, keraaminen liesi, liesituuletin, astianpesukone
Kylpyhuoneen kuvaus Lattia ja seinät laatoitettu, paneelikatto, käsienpesuallas, peili, bideesuihku, pesukoneliitäntä, amme, suihku
Khh:n kuvaus Lattiassa muovimatto, seinissä lasikuitutapetti, paneelikatto, kaapistot, kuivauskaappi
Olohuoneen kuvaus Parkettilattia, seinissä tapetti/maali, paneelikatto, takka.
Makuuhuoneiden kuvaus Makuuhuone 1: Lattiassa muovimatto, seinissä tapetti/maali, paneelikatto. Makuuhuone 2: Lattiassa muovimatto, seinissä tapetti/maali. Makuuhuone 3: Parkettilattia, seinissä tapetti/maali, paneelikatto.
Sauna Oma sauna
Sauna Betonilattia, seinät ja katto paneelia.
Kiuas Puukiuas
WC Lattiassa muovimatto, seinissä tapetti/maali, paneelikatto, kylpyhuonekaapistot, peili, pesuallas, allaskaappi, bideesuihku
Lisätietoja Eteinen: Laminaattilattia, seinät maalattu, paneelikatto. Tuulikaappi: Laattalattia, seinät maalattu, paneelikatto. Vaatehuone: Lattiassa muovimatto, seinät maalattu, paneelikatto. Lämmin askarteluhuone ja varasto.
Autopaikka Lämmin autotalli
Energialuokka Ei lain edellyttämää energiatodistusta
Energiatodistus Taloyhtiö ei maksa kaukolämpöä.

Yhtiö

Nimi Asunto Oy Kotihonka
Rakennusvuosi 1967
Kattotyyppi/kate Tasakatto huopakate
Asuinhuoneistot 7
Rakennusaine Puu
Liikehuoneistot 1
Lämmitys Kaukolämpö
Autopaikat Jokaisella oma autotalli ja autopakka kadun varrella.
Suoritetut korjaukset V. 2017 ulkovuorauksen puuosien uusinta asunnot A-E, 2016 ulkovuokrauksen puuosien uusinta asunnot F ja G, 2015 poistoilmaimureiden uusinta asunnot F ja G, 2014 kattokaivojen ja tuuletusputkien tiivistys asunnot F ja G, 2013-2014 käyttövesiputken uusinta asunnot A-E (asuntoihin B ja D osa käyttövesiputkistoista on jo uusittu aiemmin kylpyhuoneremontin yhteydessä), 2011 viemäriputkien sisäpuolien pinnoitus asunnot A-E, 2010 kaukolämmönvaihdin uusittu kaikki asunnot, 1998 kattohuopa uusittu asunnot F ja G.
Suunnit. korjaukset Hallituksen kunnossapitotarveselvitys 5 vuoden ajalle: Lämmitysvesiputkiston kunnostus asunnot A-E, vesikaton tarkastus ja mahdollinen uusinta asunnot A-E.
Tontin pinta-ala n. 3582 m2
Kiinteistönhoito Asukkaat
Vuokranantaja Kajaanin kaupunki
Vuokra-aika (asti) 30.12.2065
Omistus Vuokrattu
Vuokra 7332.24
Lisätietoja Rakennuksen käyttöönottovuosi: 1967 ja 1983.

Asuinaluetietoja

Kaavoitustilanne Asemakaava
Palvelut S-market Laajankangas n. 1,2 km, S-market Lehtikangas 1,9 km, Lidl 1,3 km, Keskussairaala n. 800 m,. Lehtikankaan monitoimitalo n. 1,2 km, Soidinsuon koulu 1,7 km,
Liikenneyhteydet Paikallisliikenne

Asumiskustannukset

Hoitovastike 236.61 €
Yhtiövastike yhteensä 236.61 €
Vesimaksun tarkennus Oma mittari
Muut maksut Vesimaksu maksetaan huoneistokohtaisten mittareiden mittaaman kulutuksen mukaan vesilaskun saapuessa taloyhtiölle. Kaukolämmön kulutus v. 2024 oli 27,3 MWh, 2 848,81 €. Ostajan maksut: varainsiirtovero 1,5 % sekä omistusoikeuden rekisteröintimaksun Maanmittauslaiatokselle.

Hintatiedot

Velaton hinta 45000 €
Myyntihinta 45000 €