kerrostalo, Kajaani, Keskusta
Osmonkatu 11, 87100 Kajaani
429 m2 | 15 000 € | Liikerakennus

Kari Korhonen
044 563 9633, kari.korhonen@tkt-korhonen.fi
Myydään kerrostalo omalla tontilla Kajaanin keskustan välittömässä läheisyydessä. Katutasossa on liikehuoneisto ja autotalli sekä 1. ja 2. kerroksessa asuinhuoneistoja. Kerrosala on 717 k-m2 + kellarikerroksessa 389 k-m2. Huoneistoja on osittain uusittu. Kiinteistö kaipaa nykyaikaistamista.
Ladataan karttaa...
Huoneisto
| Tyyppi | Kerrostalo |
| Sijainti | Osmonkatu 11, 87100, Kajaani |
| Tilat | Liikerakennus |
| Asuin- / kokonaispinta-ala | 429 m2 / 1106 m2 |
| Kerros/kerroksia | /3 |
| Keittiön kuvaus | Useita keittiöitä |
| Kylpyhuoneen kuvaus | Pesuhuone |
| Sauna | Oma sauna |
| WC | Useita wc:itä ja suihkutiloja |
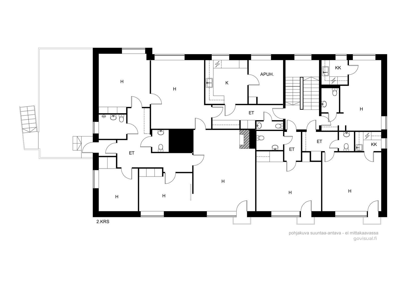
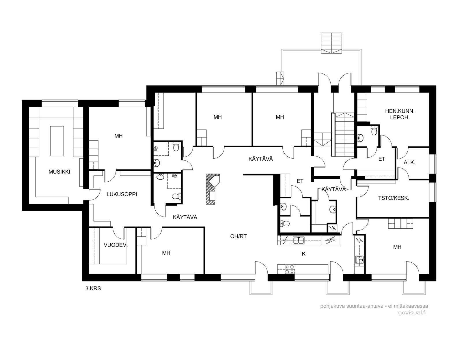
| Lisätietoja | Kellarikrs: varastotilat, lämmönjakohuone, laitehuone, pelihalli, puu- ja metallityötila n. 131 m2, varasto ja muita tiloja n. 33,7 m2. Katutaso: liiketioja n. 129,6 m2, pukuhuone- ja sauna ja varastotiloja n. 45,9 m2. 1.krs: tiloja n. 228,5 m2. 2.krs: 3 kpl n. 24 m2 suuruisia yksiöit ja n. 129 m2 huoneisto. Lisäksi autotalli n. 21 m2. Krs-ala 717 m2, kellari 389 m2, kok.ala n. 1106 m2. Pinta-aloja ei ole tarkistusmitattu. |
| Energialuokka | H |
Yhtiö
| Rakennusvuosi | 1956 |
| Kattotyyppi/kate | Harjakatto tiilikate |
| Rakennusaine | Tiili |
| Lämmitys | Kaukolämpö |
| Tontin pinta-ala n. | 1100 m2 |
| Kiinteistötunnus | 205-3-6-2 |
| Omistus | Oma |
| Kiinteistövero | 2232,34 |
Asuinaluetietoja
| Kaavoitustilanne | Asemakaava |
| Palvelut | S-Market Raatikeskus n. 600 m, kirjasto n. 400 m, . Keskuskoulu n. 240 m, Kajaanin Lyseo n. 1,1 km, Kajaanin Lukio 1,2 km |
| Liikenneyhteydet | Paikallisliikenne |
Asumiskustannukset
| Muut maksut | Lämmityskulut v. 2023 yht. 13.885,83 €. Sähkö ja kaasu v. 2023 yht. 3.239,65 €. Maksamattomia lämpölaskuja kuluineen 1.997,67 €/11.12.2025 Sähköliittymää rasittaa maksamattomat maksut n. 661,19 € /11.12.2025. Maksamattomat vesimaksut 8.12.2025 mukaan 988,08 €. Kiinteistövero 2.232,34 € + korot vuodelta 2025 maksamatta. Varainsiirtovero 3%, kaupanvahvistuskulut, lainhuudatuskulut. |
Hintatiedot
| Velaton hinta | 15000 € |
| Myyntihinta | 15000 € |
















