omakotitalo, Kajaani, Vuottolahti
Tulijoentie 160, 87800 Kajaani
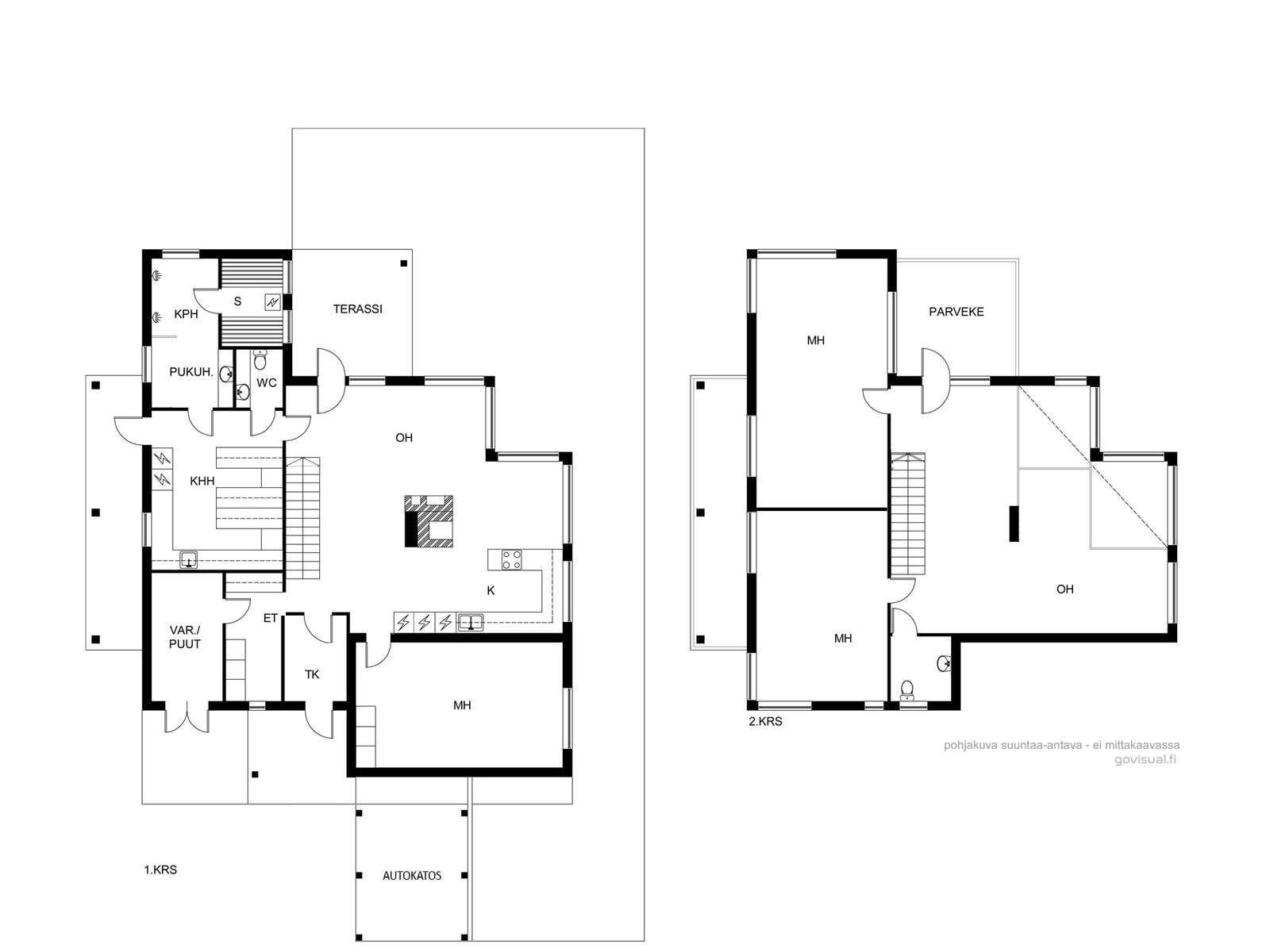
180 m2 | 690 000 € | 5h+k+khh+ph+s

Kari Korhonen
044 563 9633, kari.korhonen@tkt-korhonen.fi
Myytävänä upea koti Kajaanin Tulijoentiellä, Oulujärven rannassa, rakennettu vuonna 2006! Huoneistoala 180 m2. Tähän ainutlaatuiseen kotiin kuuluu myös oma hiekkaranta, rantasauna, erillinen aitta/liiteri, suuri piha joka koostuu nurmikosta ja metsäalueesta sekä aallonmurtaja, joka suojaa laituria että rantaa. Kohde on täydellinen yhdistelmä modernia ylellisyyttä ja rentouttavaa luonnonrauhaa. Lisäksi kiinteistöön kuuluu 229 k-m2:n hallirakennus, josta 50 k-m2 on lämmintä tilaa. Varaa esittelyaika ja tule tutustumaan kauniiseen kotiin ja unelma-kokonaisuuteen!
Ladataan karttaa...
Rakennus
Tyyppi | Omakotitalo |
Sijainti | Tulijoentie 160, 87800, Kajaani |
Tilat | 5h+k+khh+ph+s |
Kattotyyppi/kate | Harjakatto |
Kerrosluku | 2 |
Rakennusaine | puu |
Energialuokka | B2018 |
Energiatodistus | Todistuksen laatimispäivä: 22.7.2025. Viimeinen voimassaolopäivä: 22.7.2035. |
Tilat / pinta-alat | Muut tilat: Lämmin saunarakennus 27 h-m2/ 33 k-m2, jossa s+ph+tupa+mh rakennusvuosi 2003. Tuvassa takka, jääkaappi/pakastin, astianpesukone. Lämmin aittarakennus 24 k- m2 rakennusvuosi 2003, Puuliiteri 26 k-m2 rakennusvuosi 2006. Teräshallin kerrosala 229,4 k-m2 (sisään rakennettu lämmintila noin 50 m2) ja rakennusvuosi on 2002. |
Keittiön kuvaus | Laattalattia, kaakeloitu väliseinä, maalattu katto. Kaapistoa, erilliset jääkaappi ja pakastin, mikroaaltouuni, pesukone, pesuallas, keraaminen liesi, liesituuletin, leivinuuni. |
Kylpyhuoneen kuvaus | Lattiapinnat laatoitettu, yksi seinä maalattu, loput seinäpinnat kaakeloitu. Kaksi suihkua, pesuallas, lasitettu väliseinä, kaapisto. |
Khh:n kuvaus | Lattia kaakeloitu, seinät maalattu, katto maalattu, pesukone, kuivausrumpu, kaapistoa, pesuallas. |
Olohuoneen kuvaus | Seinät maalattu, lattia parkettia, katto maalattu. |
Makuuhuoneiden kuvaus | Seinät maalattu, lattia parkettia, katto maalattu. |
Säilytystilat | ulkovarasto, muu erillinen varasto |
Säilytystilojen kuvaus | Erillinen hallirakennus 229 k-m2, josta lämmintä tilaa 50 k-m2. |
Kunto | hyvä |
Sauna | Oma sauna |
Sauna | Helo saunatonttu, kiukaan selusta kiveä. Saunaseinät puuta, katto paneloitu. |
Kiuas | Sähkökiuas |
WC | Lattiapinnat laatoitettu, peilikaapin puoleinen seinäpinta kaakeloitu, muut seinät maalattu. Peilikaappi, pesuallas, wc-istuin, kaapistot. |
Lisätietoja | Aittarakennus 24 k-m2 rakennusvuosi 2003, saunarakennus 33 k-m2 rakennusvuosi 2006, puuliiteri 26 k-m2 rakennusvuosi 2006, venelaituri 60 m2 rakennusvuosi 2014. |
Kiinteistö
Kunta/kaupunki | Kajaani |
Kylä/Kaup.osa | Vuottolahti |
Kiinteistötunnus | 205-403-3-107 |
Tontin pinta-ala | 30240 m2 |
Tontin omistus | Oma |
Kiinteistön tyyppi | Omakotitalo |
Maaperä ja kasvusto | Tontilla laaja hyvin hoidettu nurmikkoalue istutuksineen, puita, pensaita ja pieni metsäalue. Rantaviivaa noin 150 metririä. |
Kaavoitustiedot | AP: Pientalovaltainen asuntoalue. Rakennuspaikalle saa rakentaa yhden asuinrakennuksen ja talousrakennuksia. Rakennuspaikan asuinkerrosala saa olla enintään 250 m2. Talousrakennusten yhteenlaskettu kerrosala saa olla enintään 180 k-m2. Omarantaisella rakennuspaikalla asuinrakennuksen etäisyys säännöstelyn ylimmästä vedenkorkeudesta tulee olla vähintään 50 m, vastaavasti erillisen saunarakennuksen etäisyys tulee olla vähintään 15 m. Rakennuspaikan vähimmäiskoko on 5000 m2. Kohde sijaitsee vireillä olevan Vuolijoen rantaosayleiskaavan alueella, jonka Kajaanin kaupunginhallitus on päättänyt aloittaa 19.3.2024 korvaten Oulujärven rantayleiskaavan. |
Kaavoitustilanne | Rantakaava |
Lisätiedot tontista | Tontilla laaja hyvin hoidettu nurmikkoalue istutuksineen, puita, pensaita ja pieni metsäalue. |
Oma sauna | Kyllä |
Tie perille | Kyllä |
Kuntotarkastus tehty | Kyllä |
Sähköliittymä siirtyy | Kyllä |
Vesijohto | Kunnan |
Lisätietoja vesijohdosta | Kajaanin Vesi, hinta hinnaston mukaan |
Viemäri | Kunnan |
Lisätietoja viemäristä | Vuottolahden Jätevesiosuuskunta hinta 3,32 € / m3 |
Muita siirtyviä liittymiä | Vesiliittymä |
Asuinaluetietoja
Palvelut | Aho kauppa 4,2 km, Kauppa Otanmäki 11 km. Kajaanin keskusta noin 28,4 km. |
Asumiskustannukset
Lämmityskustannukset | 6700 kvh €/vuosi |
Kiinteistövero | 800,20 € / vuosi €/vuosi |
Lisätiedot | Sähkön kulutus: maalämpö n. 6700 kWh, rantasauna + aitta 6000 kWh, halli 4400 kWh > kokonaiskulutus n. 34.000 kWh. |
Hintatiedot
Velaton hinta | 690000 € |
Myyntihinta | 690000 € |