toimistotila, Kajaani, Keskusta
Pohjolankatu 30, 87100 Kajaani
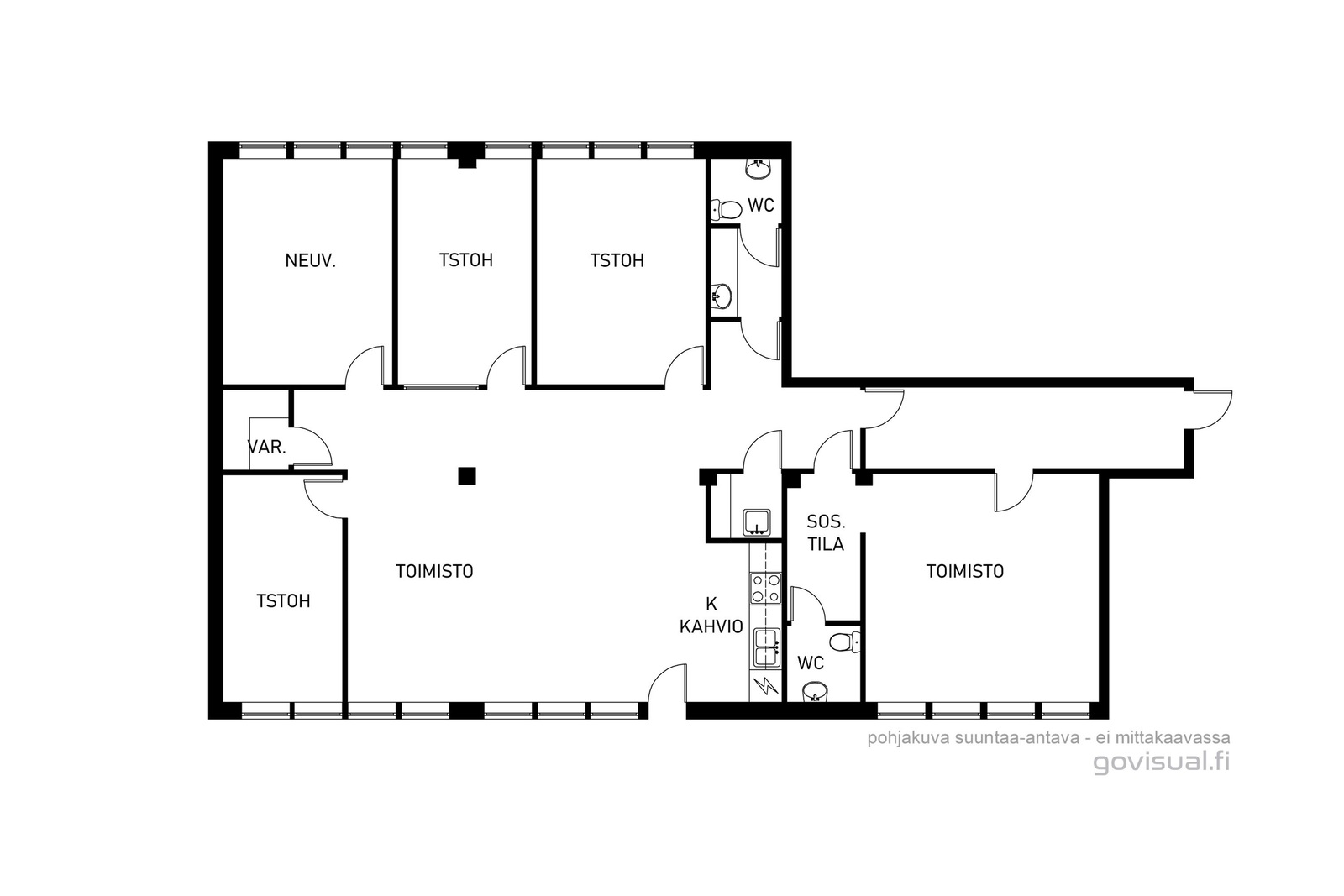
132 m2 | 15 000 € | Toimisto (5h+keittiö+2wc)

Kari Korhonen
044 563 9633, kari.korhonen@tkt-korhonen.fi
Myytävänä hyvällä pohjaratkaisulla oleva toimistohuoneisto Kajaanin keskustassa hissitalon ylimmässä, kolmannessa kerroksessa. Huoneiston Ikkunat ovat ns. läpitalon ja vuonna 2022 huoneistoon on rakennettu jäähdytysjärjestelmä. Ota yhteyttä ja tilaa esittely.
Ladataan karttaa...
Huoneisto
| Tyyppi | Toimistotila |
| Sijainti | Pohjolankatu 30, 87100, Kajaani |
| Tilat | Toimisto (5h+keittiö+2wc) |
| Asuin- / kokonaispinta-ala | 132 m2 / 132 m2 |
| Kerros/kerroksia | 3/3 |
| Hissi | Kyllä |
| Näkymät huoneistosta | Pohjolankadulle ja pihalle, pohjoinen - etelä. |
| Keittiön kuvaus | Vinyylilaattalattia, seinät maalattu, sähköliesi, liesikupu, jääkaappi. |
| Sauna | Ei saunaa |
| WC | Lattiassa muovimatto, seinät maalattu, wc-istuin, bideesuihku, 2 pesuallasta, peili |
| Lisätietoja | 4 toimistohuonetta: vinyylilaattalattia, seinät maalattu. Siivouskomero: lattiassa muovimatto, seinät maalattu |
| Lisätietoja | Huoneistoon asennettu v. 2022 6 jäähdyslaitetta (3 ulkoyksikköä). Huoneistot AIIID (osakkeet n:ot 256-298) ja AIIIE (osakkeet n:ot 247-255) on yhdistetty ja ne myydään yhdessä hintaan 25 000,00 € |
| Autopaikka | Isännöitsijältä |
| Energialuokka | C2018 |
| Energiatodistus | laadittu 5.2.2025, voimassa 5.2.2035 |
Yhtiö
| Nimi | Kajaanin Pohjolankulma Oy |
| Rakennusvuosi | 1982 |
| Kattotyyppi/kate | Tasakatto huopakate |
| Asuinhuoneistot | 2 |
| Rakennusaine | Betoni |
| Liikehuoneistot | 9 |
| Lämmitys | Kaukolämpö |
| Autopaikat | Isännöitsijältä |
| Suoritetut korjaukset | V. 1998 rakennusautomaatiolaitteiden uusiminen, 2002 ilmastointilaitteiden saneeraus, säätö ja puhdistus, 2009 takapihan autokannen korjaus ja uusiminen, 2011 IV-automaatio, luiskan lämmityskaistat, 2013 LVIA taajuusmuunnin uusittu, hissinperuskorjaus, pihakannen istutuslaatikon vesieristys, 2015 kiinteistöautomaation uusiminen, 2016 IV-konehuoneen katto, KattoVarma katon kuntoraportti, 2017 paikalliset kunnostukset, IV puhdistus ja säätö, 2022 toimistosiiven ulko-ovi, huopakatot uusittu, 2024 kylmän veden syöttöryhmä venttiili, parkkialueen ulkoseinän tiilivaurio korjattu. |
| Suunnit. korjaukset | Hallituksen kunnossapitotarvetta koskeva selvitys 12.2.2025: - ikkunat - räystäät: paikalliset korjaukset -seinän vierustan saumaus, tarkastus vuosittain - kulkurakenteet - sisäpinnat: seinäpintojen ja kattopintojen maalaus - aitojen ja puomien maalaus, pihan siistiminen - huomiomaalaus aitaan - ulkovalot Led lampuksi |
| Tontin pinta-ala n. | 1691 m2 |
| Isännöitsijä/puh. | Kiinteistötahkola Oy Riikka Pääkkönen Lönnrotinkatu 8, 87100 Kajaani Puh. 0207 481 042 |
| Kiinteistönhoito | Huoltoyhtiö |
| Omistus | Oma |
Asuinaluetietoja
| Kaavoitustilanne | Asemakaava |
| Palvelut | Keskustan palvelut . |
| Liikenneyhteydet | Paikallisliikenne |
Asumiskustannukset
| Hoitovastike | 897.6 € |
| Yhtiövastike yhteensä | 897.6 € |
| Vesimaksun tarkennus | Sisältyy vastikkeeseen |
| Autopaikkamaksu | 10 € |
| Muut maksut | Ostajan maksut: varainsiirtovero 1,5 %. |
Hintatiedot
| Velaton hinta | 15000 € |
| Myyntihinta | 15000 € |






