omakotitalo, Kajaani, Lehtikangas
Mäkikatu 10, 87500 Kajaani
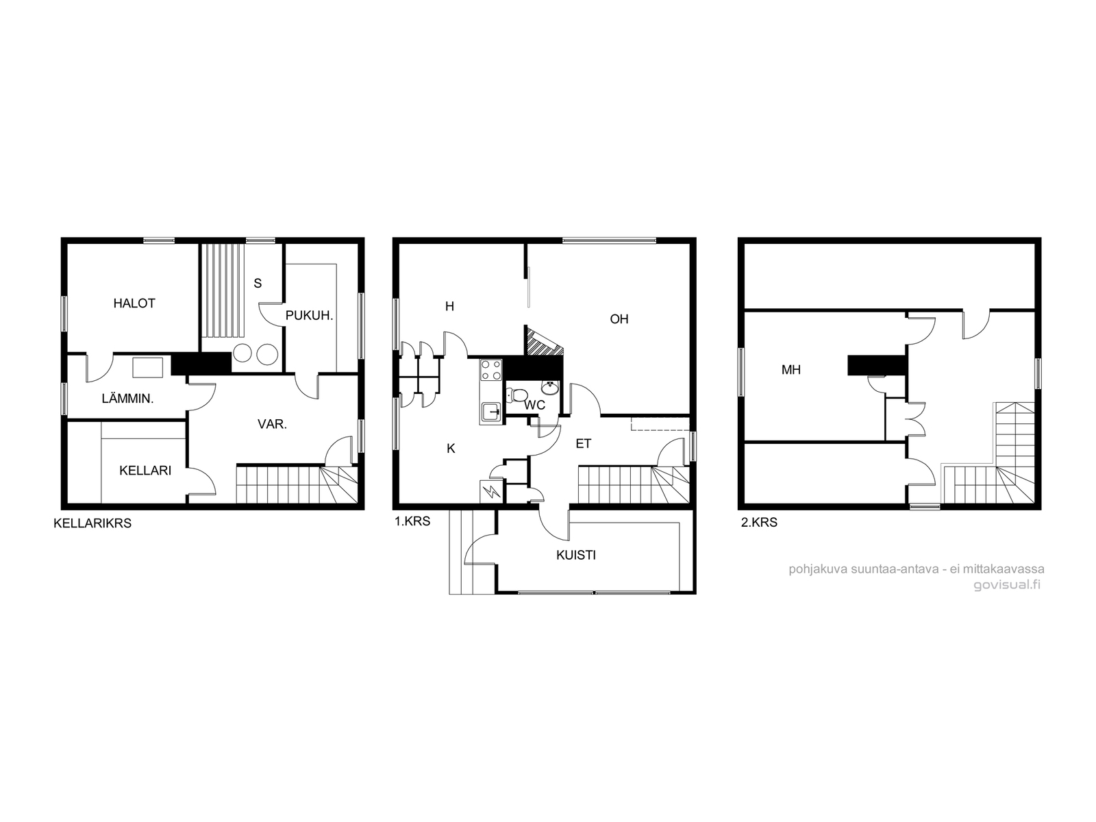
82 m2 | 45 000 € | 3h+k+aula+s+varastot

Kari Korhonen
044 563 9633, kari.korhonen@tkt-korhonen.fi
Nyt tarjolla perinteinen rintamamiestalo hyvällä sijainnilla Mäkikadun Lehtikankankaalla. Talon on suunnitellut arkkitehti Osmo Sillman ja talossa näkyy hänen suunnittelemia yksityiskohtia. Talossa on säilynyt paljon alkuperäisiä yksityiskohtia, kuten kauniisti patinoidut puiset väliovet ja kaappien ovet. Rintamamiestalon kotoisa tunnelma jatkuu kauniilla verannalla, jossa voi nauttia eri vuodenajoista. Tervetuloa yksityisesittelyyn.
Ladataan karttaa...
Rakennus
| Tyyppi | Omakotitalo |
| Sijainti | Mäkikatu 10, 87500, Kajaani |
| Tilat | 3h+k+aula+s+varastot |
| Kattotyyppi/kate | Harjakatto |
| Kerrosluku | 1.5 |
| Rakennusaine | puu |
| Energialuokka | F2018 |
| Energiatodistus | Laadittu 20.2.2025, voimassa 20.2.2035 |
| Keittiön kuvaus | Lautalattia, seinissä maalattu halltex-levy, sähköliesi, liesituuletin, jääkaappi, |
| Olohuoneen kuvaus | Lautalattia, seinät tapetoitu, levykatto |
| Makuuhuoneiden kuvaus | Lautalattia, seinät tapetoitu Yläkerran makuuhuone: lautalattia, seinät tapetoitu, levykatto |
| Säilytystilojen kuvaus | Kellarivarastot |
| Korjaukset | Käyttövesiputket 2004 |
| Kunto | ei luokiteltu |
| Sauna | Oma sauna |
| Sauna | Lattia laatoitettu, seinät puupaneelia/rappaus, katto puupaneelia. Saunan yhteydessä pesuhuone. Lattia laatoitettu, seinät betonia, katto puupaneelia, suihku. |
| Kiuas | Puukiuas |
| WC | Seinät maalattu/osittain laatoitettu, lattiassa muovimatto, katto haltex-levyä,wc-istuin, käsienpesuallas + allaskaappi, bideesuihku |
| Lisätietoja | Yläkerran aula: lautalattia, seinät maalattu, levykatto |
Kiinteistö
| Kunta/kaupunki | Kajaani |
| Kylä/Kaup.osa | Lehtikangas |
| Kiinteistötunnus | 205-5-56-23-L1 |
| Tontin pinta-ala | 821 m2 |
| Tontin omistus | Vuokrattu |
| Vuokranantaja | Kajaanin kaupunki |
| Tontin vuokra | 795.1 |
| Kiinteistön tyyppi | Omakotitalo |
| Maaperä ja kasvusto | rinnetontti, nurmikkoa, pensaita, puita |
| Kaavoitustiedot | Kajaanin kaupungilta |
| Kaavoitustilanne | Asemakaava |
| Rakennusoikeus | 0.3 |
| Lisätiedot tontista | Tontti nurmikkoa, puita. |
| Oma sauna | Kyllä |
| Tie perille | Kyllä |
| Kuntotarkastus tehty | Kyllä |
| Sähköliittymä siirtyy | Kyllä |
| Vesijohto | Kunnan |
| Viemäri | Kunnan |
| Muita siirtyviä liittymiä | Vesi- ja viemäriliittymä |
Asuinaluetietoja
| Palvelut | S-market Lehtikangas 900 m, S-market Laajankangas 1,4 km, Prisma 1,7 km, Tokmanni 1,5 km, Lehtikankaan Apteekki 1 km, postin palvelupiste 2,2 km. |
| Liikenneyhteydet | Paikallisliikenne |
Asumiskustannukset
| Kiinteistövero | 99,38 €/vuosi |
| Lisätiedot | Lämmityksen ja taloussähkön kulutus n. 20132 Kwh/v. Mahdollisuus lämmittää myös öljyllä, jolloin öljyn kulutus n. 3500 - 4000 l/v. Ostajan maksut: Varainsiirtovero 3 %, vuoraoikeuden kirjaamiskulut |
Hintatiedot
| Velaton hinta | 45000 € |
| Myyntihinta | 45000 € |




























